Trilocale completamento ristrutturato in classe B
IN VENDITA A BRESCIA URAGO MELLA Via Corniani
Trilocale totalmente ristrutturato in classe B con possibilità di detrazione di 20.000 € in 10 anni.
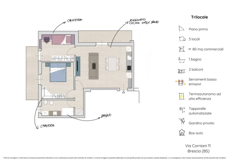
Proponiamo in vendita a Urago Mella, in palazzina ben abitata di poche unità, trilocale completamente ristrutturato con garage ed area verde privata. L'appartamento si trova al primo piano ed cosi composto: Soggiorno con angolo cottura dal quale si accede a balcone rivolto a Ovest, camera da letto principale, camera da letto secondaria dalla quale si può accedere al secondo balcone e bagno finestrato. Possibilità di armadio a muro. Autorimessa ed area verde privata completano la soluzione.
Porte interne chiare , gres porcellanato effetto legno 20x120, sistema di oscuramento in alluminio coibentato ad azionamento elettrico, predisposizione per aria condizionata, griglie di sicurezza fisse alle finestre ed apribili alle portefinestre, sanitari sospesi, miscelatori cromati, termoautonomo con caldaia a condensazione, piatto doccia effetto pietra sp 3 cm. Verranno cedute anche detrazioni fiscali per circa 20.000 euro recuperabili in dieci anni dalla propria dichiarazione dei redditi.
Urago Mella è un quartiere in forte sviluppo posto nella zona nord - ovest della città. L'immobile si trova vicino a tutti i servizi principali del quartiere e nelle immediate vicinanze sarà collocata la fermata della nuova linea tram T2.
Caratteristiche dell'immobile:
- Classe energetica B.
- Piano primo.
- Predisposizione climatizzazione.
- Serramenti in PVC doppio vetro a taglio termo acustico, portoncino blindato.
- Pavimenti e rivestimenti in grès porcellanato.
- Sanitari sospesi.
- Superficie 80 mq.
- Tapparelle automatizzate.
- Giardino privato.
- Box privato.
- Riscaldamento autonomo.
- 3 locali (cucina soggiorno, 1 bagni, 2 camere da letto).
- 2 Balconi.
Prezzo di vendita: 216.000 €
Scopri questo e altri vantaggi nell'acquistare casa con noi.
Particolarità del progetto
Balconi
Presenza di 2 comodi balconi in zona giorno e in camera matrimoniale per godersi non solo il comfort interno dell'appartamento situato al piano primo, ma anche un doppio affaccio sull'esterno.
Dettagli delle finiture
Dettagli come il controsoffitto ribassato in zona soggiorno ed anticamera per creare una atmosfera accogliente, light design e faretti ad incasso, colore pareti dal carattere elegante e raffinato.
Impiantistica e serrementi
I serramenti sono certificati basso emissivi in PVC, tutte le tapparelle sono automatizzate elettriche, l'impianto è termoautonomo ad alta efficienza.










